Übersicht
- Updated On:
- 17. 572 2026
- 3 Schlafzimmer
- 1 Badezimmer
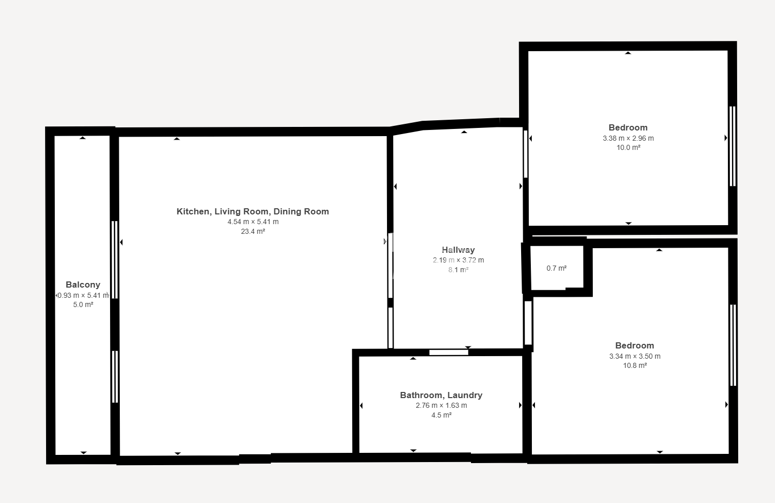
- 63 m2
Leírás
IN EINER RUHIGEN, GRÜNEN GEGENDE VON KESZTHELY, IN PARKNÄHE, BIETEN WIR EINE KOMPLETT RENOVIERTE 63 m² GROSSE WOHNUNG IM 3. STOCK MIT BALKON IN EINEM GEPFLEGTEN MEHRFAMILIENHAUS ZUM VERKAUF AN.
-
Die Wohnung verfügt über eine hervorragende Raumaufteilung und bietet einen hellen und komfortablen Wohnraum:
-
zwei getrennt begehbare Zimmer, Wohn-Küchen-Essbereich, Badezimmer, WC, Flur sowie einen 5 m² großen Balkon
-
die Immobilie verfügt über eine individuelle Gasheizung mit Heizkörpern; zusätzlich sorgt eine Inverter-Klimaanlage im Sommer für angenehme Temperaturen
-
die Wohnung wurde vor etwa 2 Jahren komplett renoviert, wobei auch die Wasser-, Strom- und Abwasserleitungen erneuert wurden, sodass sich die Immobilie in ausgezeichnetem technischen Zustand befindet
Weitere Merkmale:
-
innen und außen gedämmte Wohnung (10 cm und 5 cm Dämmung)
-
dreifach verglaste Aluminiumfenster
-
elektrische Rollläden mit Fernbedienung und Insektenschutzgittern
-
hochwertige Bodenbeläge: Fliesen und Laminat
Die Wohnung ist mit sehr niedrigen Nebenkosten zu betreiben, dank der modernisierten Heizung und der Dämmung.
Auch das Mehrfamilienhaus wurde laufend gepflegt und modernisiert:
-
neue Fenster und Türen im Treppenhaus
-
kürzlich fertiggestellte Dachisolierung
-
Austausch der Steigleitungen
-
gedämmtes Gebäude
-
ein weiterer Vorteil ist, dass die Hausgemeinschaft über erhebliche finanzielle Rücklagen verfügt, was eine stabile Zukunft gewährleistet
-
den Bewohnern steht ein gepflegter, grüner Garten zur Verfügung, der eine angenehme Erholungsmöglichkeit bietet
Zur Wohnung gehören außerdem:
-
eigener Abstellraum
-
geschlossener Parkplatz im Innenhof vor dem Gebäude
Die Umgebung ist ruhig, grün und parkähnlich, ideal für alle, die in einer entspannten Wohngegend leben möchten, während das Stadtzentrum und der Balaton leicht erreichbar sind.

Magyar
English


















