Übersicht
- Updated On:
- 08. 555 2025
- 3 Schlafzimmer
- 1 Badezimmer
- 84 m2
Leírás
PANORAMA-LUXUSWOHNUNG IN SCHLÜSSELFERTIGEM ZUSTAND ZU VERKAUFEN, IN NEMESBÜK, IN DER NÄHE VON HÉVÍZ!
MERKMALE:
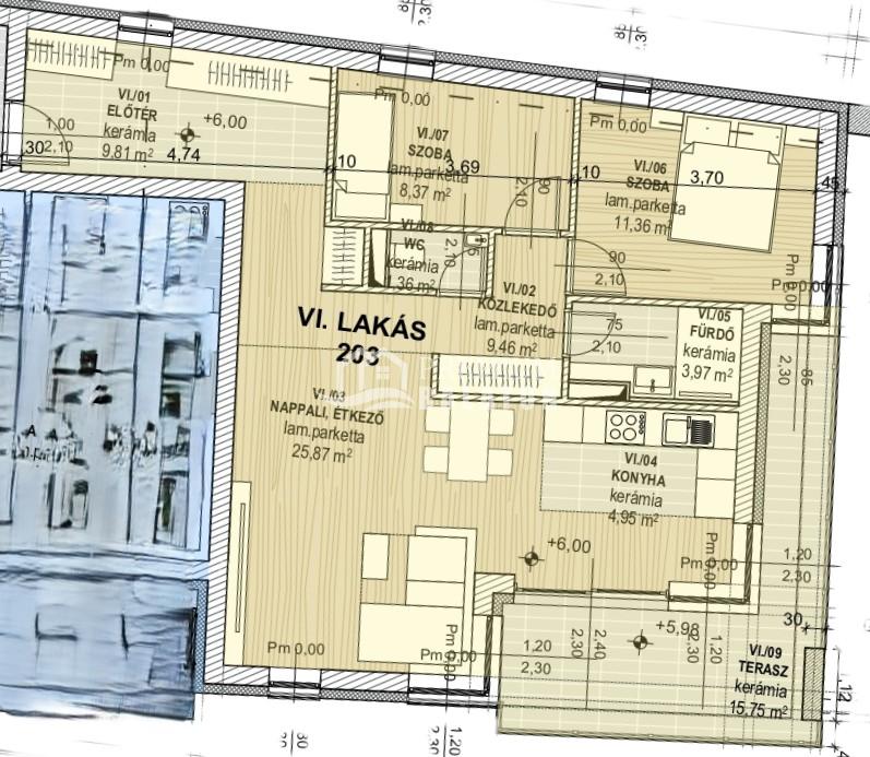
-die 84 qm große Wohnung befindet sich im zweiten Stock eines 8-Wohnungen-Luxus-Wohnkomplexes
-Übergabe voraussichtlich Ende 2025
-die hohe Qualität der Wohnungen, ihre architektonischen Lösungen und die verfügbaren Dienstleistungen sorgen für Komfort
-kleine Parkplätze stehen zur Verfügung, die nicht separat erworben werden müssen
-Die Wohnung ist nach Südosten ausgerichtet: 1 Wohnzimmer, 2 Zimmer, 1 Küche, 1 Badezimmer, 1 Toilette, 1 Balkon, 1 Flur
-Lagerung im gemeinsamen Lagerraum im Erdgeschoss möglich
-im Erdgeschoss entsteht ein gemeinsamer Wellnessbereich mit finnischer Sauna und Whirlpool
-Aluminiumfenster mit Dreifachverglasung.
-bei einem Zwischenkauf können künftige Eigentümer die Kalt-/Warmbeläge bis zu einem Bruttopreis von 10.000 FT/m2 selbst wählen
-die Wohnungen verfügen über separate Zähler
-Heizung: Norwegische NOBU Elektroheizplatten, Sondergrößen, elektrische Fußbodenheizung im Bad und Wohnzimmer.
-Klimaanlagenvorbereitung(!)
-Alarmvorbereitung (!)
-Solarpanel-Vorbereitung (!)
-Technische Parameter:
-Elektrische Armaturen vom Typ LEGRAND
-Stützenfuß mit Fußbalkenverstärkung
-LEIER Sockel
-Eisenbasis
-monolithische Stahlbetonplatte
– Wärmedämmung PTH 30 NF im Baumit-Mörtel verlegt, feuerfester Ziegel PTH 10
-BAUMIT Maschinenputz auf den Innenflächen, DULUX Weißanstrich nach RIGIPS Glättung
-Graphit-Wärmedämmung an der Außenfassade unter der Prefa-Stehfalzblechverkleidung /mit 20 cm Steinwolle-Wärmedämmung/
-AUSTROTHERM geschlossenzellige Wärmedämmung im Sockelbereich und unter der Steinverkleidung
– vollständig elektrische Heizung und Kühlung. Im H-Tarif ist eine Klimaanlage inklusive.
-das Eigentum ist unterverwahrt

Magyar
English





